MODULARZ

MODULARZ

Arquitetura modular

Resultado de quatro anos de pesquisas e testes, o MODULARZ é um sistema sustentável e combinável, que permite diversas adaptações e amplia a possibilidade de personalização. Construído em módulos, abre mão dos longos prazos para construção, os painéis são montados in loco, reduzindo o prazo de entrega e possibilitando o controle total de gastos.

Além disso, a tecnologia permite a escolha dos espaços com maior liberdade, proporcionando conforto e conexão direta com a paisagem. Tudo de forma simples, rápida e confortável.

Conheça os diferenciais

Dispensa Obra

Os painéis modulares já vêm prontos com hidráulica e elétrica produzidos na fábrica, o que permite o uso inteligente dos materiais, reduzindo desperdícios.

Crescimento planejado

Possibilidade de ampliar a construção de forma prática e planejada, no momento que desejar, garantindo flexibilidade para acompanhar suas necessidades futuras.

Montagem rápida

Os dispositivos prontos são montados no local em poucas semanas, possibilitando total controle de prazo e custo.

Personalização

Ambientes com possibilidade de personalização e decoração planejada que dão um toque ainda mais especial ao ambiente.

Alcance qualquer lugar

Os dispositivos prontos são montados no local em poucas semanas. Pode ser adaptado a qualquer terreno e paisagem, proporcionando conforto e conexão direta com o entorno.

Qualidade

Estrutura leve, com alta resistência mecânica. Os painéis ainda oferecem conforto acústico e térmico.

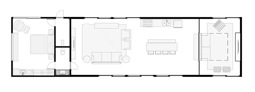
Um módulo, diversas possibilidades.

1 Módulo

Módulo básico com todas as instalações e acabamentos

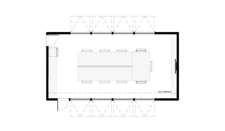
3 Módulos

Módulo básico com todas as instalações e acabamentos

4 Módulos

Módulo básico com todas as instalações e acabamentos

2 Módulos

Módulo básico com todas as instalações e acabamentos

2 Módulos

Módulo básico com todas as instalações e acabamentos

Opções de personalização

Opção 1

Módulo básico com todas as instalações e acabamentos

Opção 2

Módulo com marcenaria e serralheria inclusas

Opção 3

Módulo completo com marcenaria, serralheria e decoração inclusas

Office Personalizado

Plantas

Sauna e Adega do seu jeito

Quer saber mais?

Entre em contato conosco